House in Olhão II

Description:

The intervention is located on Rua João da Rosa, within building no. 1, a structure originally part of a group of five buildings constructed in the early 20th century to house fish canning factories. These factories were strategically placed on the outskirts of the urban core, in a spacious area with convenient access to the railway line, catering to the growing demands of the canning industry, particularly during the two World Wars. Over time, as industrial activity intensified, worker housing emerged in the vicinity, gradually transforming the surrounding area into a residential neighborhood. Following the decline of the canning industry in the 1970s, four of the original buildings were demolished and replaced with residential structures.

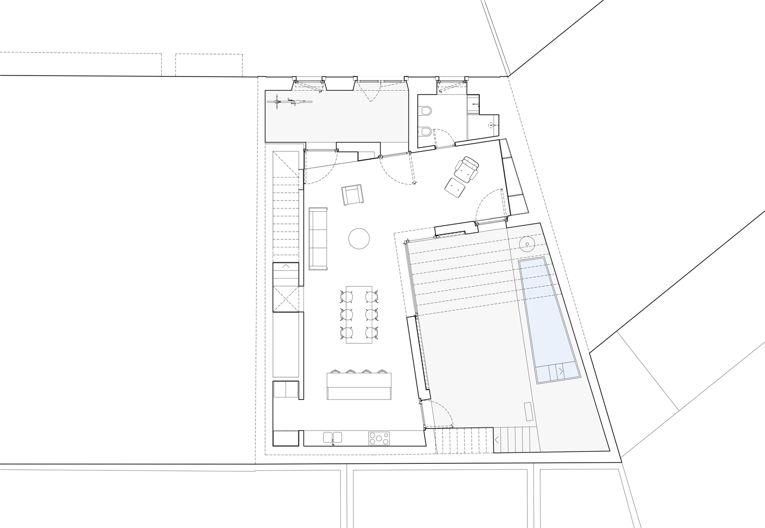
At the site of the remaining factory, we were tasked with designing a residence. In light of the original building’s robust construction and the significance of preserving its historical memory, we chose to retain the entire perimeter and volumetric envelope, integrating the domestic program within the existing industrial framework. On the northern side, the façade was carefully preserved, maintaining its characteristic stone-framed openings. New window frames were installed, and a yellow pigment was introduced to highlight the transformation of the building’s function.

Inside, a new architectural volume was developed, drawing on the gabled form of the original industrial structure. Spatial interventions included strategic subtractions to form two distinct courtyards that enhance the dwelling’s functionality and spatial quality. The entry courtyard acts as a transitional space between the public sidewalk and the private domain, serving as an antechamber that mediates the relationship between exterior and interior while promoting cross ventilation and natural lighting. In contrast, the larger central courtyard to the south becomes the home’s primary outdoor space, benefitting from its generous proportions and favorable solar orientation. This courtyard establishes a direct connection to the living room and kitchen, ensuring optimal living conditions within the enclosed urban block.

From the ground-level courtyard, a sequence of terraces leads upward, allowing access to the roof and reinforcing the interplay between interior and exterior spaces. Within the courtyard, a small water tank and climbing plants add sensory depth, creating an atmosphere of calm and reflection. The sound of water and its shimmering reflections contribute to a tranquil setting, while the interplay of light and shadow, shaped by vegetation and architectural elements, animates the space with a dynamic quality that evolves throughout the day.

Material choices were guided by a desire to maintain harmony between the old and new elements. The original stone masonry was left exposed, celebrating its texture and history, while newly introduced materials such as natural pigmented lime plasters, terrazzo flooring, natural stone, and exposed concrete provide a contemporary counterpoint.

Datasheet:

Project
Private house

Client
Private

Location
Olhão, Portugal

Project
2020-2022

Construction
2022-2024

Status
Built

Architecture
Bruno Oliveira
Marlene dos Santos

Collaborators
Andreia Martins (project coordination)
Edite Borges (execution project and construction coordination)
Sofia Alves

Structures planning
PROGOTICA . Rui Graça e Costa

Termal performance planning
ZONA TERMICA. Filipe Martins

Eletric planning
SIMERGIA . Paulo Escobar

Model
Estudio ODS

Photography
Frederico Martinho